Themabewertung:
  • 0 Bewertung(en) - 0 im Durchschnitt
  • 1
  • 2
  • 3
  • 4
  • 5
Open Baffle ... spinnerte Idee ?
#1
auch hier wieder die Frage, was mache ich mit Chassis mit zu hohem Q-Faktor, die nicht so recht in klassischen Gehäuseformen (CB, BR, TQWT usw.) spielen wollen.

Man könnte ja mal eine offene Schallwand probieren.

In diesem Fall, der Audax HP210M0 (Wink jaja mal wieder) aber auch der Dynavox aus der Tricky wäre ein interessanter Kandidat.

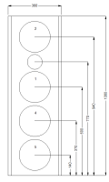
... folgendes habe ich mir überlegt

[Bild: picture.php?albumid=943&pictureid=17540]

4 Audax HP210M0 u. in der Mitte ein 10cm Breitbänder

... alles mal mit BoxSim simuliert (s. Anhänge), es geht mehr um's Prinzip ob das überhaupt so funktionieren kann, bevor ich die Säge anschmeiße

s. BoxSim FAQ
Zitat:Mit einem Trick ist es möglich, auch offene Schallwände in Boxsim zu simulieren.
Man benutzt dazu die Bassreflexsimulation, ordnet den Reflexkanal auf der Gehäuserückseite, unmittelbar hinter dem Chassis an und verwendet für das Reflexvolumen einen kleinen und für die Abstimmfrequenz einen sehr großen Wert. Um auch die simulierte Bedämpfung, die bei offenen Schallwänden so nicht stattfindet noch verschwinden zu lassen, verwendet man die Option "explizite Eingaben für Luftlast und Resonanzgüten".

ich habe noch nie eine OB gebaut hat jemand Erfahrungen damit ? ...
könnte das so funktionieren oder eher ein Fall für die Tonne ?

Grüße Udo


Angehängte Dateien Thumbnail(s)
           

.png   cad.png (Größe: 12,79 KB / Downloads: 114)
.bpj   Audax HP210M0 x4 Open Baffle.BPJ (Größe: 24 KB / Downloads: 139)
Zitieren

#2
Interessant Idee, ich habe etwas ähnliches vor, leider habe ich relativ wenig Erfahrung mit Open Baffle.
Zumindest einen großen Dipol-Sub habe ich gebaut und bin mir noch nicht so sicher, ob mir das wirklich gefällt. Man muss sehr auf die Aufstellung achten und selbst dann gibt es nur einige Hörpositionen im Zimmer, bei denen der Pegel voll da ist. Wenn man sich im Schatten aufhält klingt es schon sehr dünn. Dazu muss ich sagen, dass ich davor zwei große Basshörner hatte, von daher bin ich noch verwöhnt.
Der Bass (the box 15-300/8-A) für den Dipol ist ein 15" von Thomanns Hausmarke, der ebenfalls einen recht hohen Qts von 0,64 hat.
スピーカ ist japanisch und heißt Lautsprecher
Zitieren

#3
Hi Patrick,

スピーカ schrieb:ich habe etwas ähnliches vor...

in der Mitte (anstatt des BB's) dieser Konstruktion würde sich ja evtl. dein Linaeum Dipol anbieten Wink

スピーカ schrieb:Zumindest einen großen Dipol-Sub habe ich gebaut und bin mir noch nicht so sicher, ob mir das wirklich gefällt. Man muss sehr auf die Aufstellung achten und selbst dann gibt es nur einige Hörpositionen im Zimmer, bei denen der Pegel voll da ist. Wenn man sich im Schatten aufhält klingt es schon sehr dünn. Dazu muss ich sagen, dass ich davor zwei große Basshörner hatte, von daher bin ich noch verwöhnt.
Der Bass (the box 15-300/8-A) für den Dipol ist ein 15" von Thomanns Hausmarke, der ebenfalls einen recht hohen Qts von 0,64 hat.

... also deine Dipol-Begeisterung hält sich eher in Grenzen ?

Grüße Udo
Zitieren

#4
Hallo Udo,

Zitat:... also deine Dipol-Begeisterung hält sich eher in Grenzen ?
Zumindest im Bassbereich, obwohl ich zugeben muss, dass die Basspräzision in der Tat gut ist... wenn man eine Position gefunden hat Rolleyes
Im Mitteltonbereich ist Open Baffle verführerisch, weil es keine Gehäusedämpfung braucht. Auch stört mich hier die typische Richtcharakteristik nicht. Schlimmer sind schlecht gedämmte Mitteltongehäuse.
Die Seiten von Linkwitz kennst Du, nehme ich an...
Wegen der Interferenzen habe ich mir überlegt an den Kanten Dicke Röhren zu befestigen. Allerdings kann ich nicht abschätzen, ob es was bringt. Du kennst nicht zufällig ein gutes Simulationsprogramm?Big Grin
Linkwitz hat das Problem mit nicht parallelen Kanten angegangen.
Grüße Patrick
スピーカ ist japanisch und heißt Lautsprecher
Zitieren

#5
Pfeffermühle schrieb:könnte das so funktionieren oder eher ein Fall für die Tonne ?
Hallo Udo,
grundsätzlich scheinen die Audax keine schlechte Dipol-Wahl zu sein - insbesondere für das Geld. Ich empfehle aber, mal hier zu lesen, warum Dipolbässe so selten "in die Luft" gebaut werden.
Die Idee, die Tieftöner weit weg vom Breitbänder nicht bis zur Trennfrequenz laufen zu lassen, ist im Prinzip gut. Aber schau Dir bitte die Phasenlage aller Tieftöner bei der Trennfrequenz an. 45° Unterschied sind nicht so dolle.

Bei nicht allzu hoher Trennfrequenz bietet es sich generell an, die Audaxe in einen H-frame zu stecken, damit der Aufbau schön kompakt bleibt und die untere Grenzfrequenz noch etwas nach unten rutscht. In meinem unten verlinkten Schallwand-PDF steht dazu was auf S. 28-29.
Zitieren

#6
Hi Rudolph,

oder den obersten Audax ganz nach unten setzen ?

Rudolf schrieb:Die Idee, die Tieftöner weit weg vom Breitbänder nicht bis zur Trennfrequenz laufen zu lassen, ist im Prinzip gut. Aber schau Dir bitte die Phasenlage aller Tieftöner bei der Trennfrequenz an. 45° Unterschied sind nicht so dolle.

mmh ... wie soll ich das vermeiden ? Eine Weiche verdreht nun mal die Phase ... oder hast du 'ne Idee ?

Rudolf schrieb:Bei nicht allzu hoher Trennfrequenz bietet es sich generell an, die Audaxe in einen H-frame zu stecken, damit der Aufbau schön kompakt bleibt und die untere Grenzfrequenz noch etwas nach unten rutscht. In meinem unten verlinkten Schallwand-PDF steht dazu was auf S. 28-29.

H-Frame ganz ungern
1. wegen Problemen im Mitteltonbereich
2. Optik

und das bringt viell. 2-3 dB mehr Wirkungsgrad aber keine Erhöhung des max. Schalldruck's, wenn Boxsim richtig rechnet. Bei 20-30Watt ist die Konstruktion so oder so am Ende (rein hubtechnisch)

s. Anhang Schallwand 12cm statt 2cm tief


Angehängte Dateien Thumbnail(s)
   
Zitieren

#7
neuer Versuch ...

den obersten Audax ganz nach unten versetzt (s. Anhang)

Weiche habe ich vorerst so gelassen
die beiden unteren Chassis müssten ja jetzt ein wenig von der Bodennähe profitieren

besser so ?

Grüße Udo


Angehängte Dateien Thumbnail(s)
   
Zitieren

#8
also ich habe die Schallwand mal spaßeshalber 50cm (statt 36cm) breit gemacht

das ergibt +2dB, vorausgesetzt BoxSim rechnet richtig

wenn ich mich dann entscheiden sollte ...

verzichte ich auf die 2dB mehr und habe eine halbwegs ansehnliche Box


Angehängte Dateien Thumbnail(s)
   
Zitieren

#9
Das mit dem obersten Audax nach unten finde ich besser Smile

Im übrigen halte ich mich besser raus, wenn Dir der optische Eindruck deutlich wichtiger ist als der akustische. Ich denke - fast - umgekehrt. :engel:

Gruß
Rudolf
Zitieren

#10
Hi Rudolf

Rudolf schrieb:Das mit dem obersten Audax nach unten finde ich besser Smile

gut dann mache ich es so ... Holz kostet ja nur ein paar €

Rudolf schrieb:Im übrigen halte ich mich besser raus, wenn Dir der optische Eindruck deutlich wichtiger ist als der akustische. Ich denke - fast - umgekehrt. :engel:

na ist ok, man versucht halt das letzte dB'chen rauszuholen ...
aber der Optik/Akustik Faktor wird mir zu schlecht ...

so sind wir "KISTEN-BAUER" halt drauf Wink

Grüße Udo
Zitieren

#11
ein Kompromiss Vorschlag...

die ganze Konstruktion 5 Grad nach hinten geneigt
unten breiter (50cm) oben schmal

besser ?


Angehängte Dateien Thumbnail(s)
   
Zitieren

#12
mal als Papiermodell (schlechte Qualität) nur zum Verständnis wie ich das meine


Angehängte Dateien Thumbnail(s)
   
Zitieren

#13
Schöne Idee Smile

Für mich ist die Optik übrigens auch wichtig und ich kann sehr gut verstehen, dass Dir das H-Profil nicht zusagt.
スピーカ ist japanisch und heißt Lautsprecher
Zitieren

#14
スピーカ schrieb:Schöne Idee Smile

Für mich ist die Optik übrigens auch wichtig und ich kann sehr gut verstehen, dass Dir das H-Profil nicht zusagt.


Ich auch, obwohl ich mittlerweile auch schon so weit bin, dass es auch nach was klingen muß....Rolleyes
AUDIY LIFE auf YT
Zitieren

#15
nochmal zur Richtigstellung

Rudolf schrieb:... wenn Dir der optische Eindruck deutlich wichtiger ist als der akustische.

der Satz stammt nicht von mir ... würde ich so nie sagen

und ich habe ja auch begründet warum mir das H-Profil nicht zusagt

Zitat:1. wegen Problemen im Mitteltonbereich
2. Optik

bei einem Subwoofer mag das ok sein

Ich werde mal noch ein wenig tüfteln um die Schallwand etwas breiter zu kriegen aber eben so, das es noch halbwegs gut ausschaut.

wie war das ? "Das Auge hört mit" oder schmeiße ich da was durcheinander Wink

Grüße Udo
Zitieren

#16
Huhu nochmal,

im Moment tendiere ich zu sowas:
[Bild: picture.php?albumid=943&pictureid=17598]

also ein sich nach oben verjüngendes "Halb-U"

... lieber nicht nach hinten geneigt (das bringt auch wieder Probleme)

simulieren kann man das vermutlich nicht, meine größte Sorge ist das der Breitbänder in dieser Position "rumzickt"

... komme wohl um einen Testaufbau nicht herum ...

Einwände ?

Grüße Udo
Zitieren

#17
Rudolf schrieb:Bei nicht allzu hoher Trennfrequenz bietet es sich generell an, die Audaxe in einen H-frame zu stecken, damit der Aufbau schön kompakt bleibt und die untere Grenzfrequenz noch etwas nach unten rutscht. In meinem unten verlinkten Schallwand-PDF steht dazu was auf S. 28-29.

mmh ... jetzt komme ich doch in Grübeln :denk:

4 Audaxe pro Seite als Sub-Einheit bis 300-400Hz in H-Anordnung sollten sich ja einigermaßen kompakt verbauen lassen ...

nur, dann komme ich vermutlich nicht mit einem 10cm BB hin ...

Grüße Udo
Zitieren

#18
Hallo Udo

Was hältst Du davon, die Front konisch nach oben zu verjüngen?
Dann hast Du weniger Probleme mit dem Breitbänder, der dann zwar nach oben muss und nur noch einen schmalen Rand sieht (vielleicht gewinnst Du unten noch ein paar cm, damit die BB-Höhe stimmt)
Die Säule erscheint dann insgesamt schmaler und die Subs sind kompakt über dem Boden.

Aus meiner Sicht mit dem Vorteil, dass Du unten deutlich breiter als oben bauen kannst (ggf. auch etwas tiefer...) und damit die Buckel und Löcher im FG verschmiert werden.

Die nötigen Winkelschnitte kannst Du bestimmt mit einer guten Kreissäge oder bei einem Tischler Deiner Wahl (vor Ort) machen.

Grüüüsse
Wolfgang

PS: So ein lokaler Tischler hat immer gute Ideen zum Gehäuse.
Zitieren

#19
Hi Wolfgang,

Gnom52 schrieb:Was hältst Du davon, die Front konisch nach oben zu verjüngen?
Dann hast Du weniger Probleme mit dem Breitbänder, der dann zwar nach oben muss und nur noch einen schmalen Rand sieht (vielleicht gewinnst Du unten noch ein paar cm, damit die BB-Höhe stimmt)
Die Säule erscheint dann insgesamt schmaler und die Subs sind kompakt über dem Boden.

Aus meiner Sicht mit dem Vorteil, dass Du unten deutlich breiter als oben bauen kannst (ggf. auch etwas tiefer...) und damit die Buckel und Löcher im FG verschmiert werden.

ja gute Idee ... aber je schmaler die Schallwand desto weniger Pegel macht der BB im Bereich der Trennfrequenz (irgendwo zwischen 300-600Hz) so genau weiss ich das ja noch nicht

ach ist das kompliziert :denk:

Grüße Udo
Zitieren

#20
Hallo Pfeffermühle,
jetzt hab ich mich extra angemeldet um Dir ein paar Ratschläge zu den Audax zu geben. Smile Mir juckts in den Fingern. Big Grin
Die Chassis sind tatsächlich gut für OB geeignet. Es gibt aber ein paar Eigenschaften die auch dagegen sprechen. Man muss aber immer den Preis sehen und in dieser Beziehung sind die HP210MO sehr gut.
Für ein Chassi das viel Hub verrichten muss, ist die Zentrierung ziemlich progressiv. Das ist kein Problem solange man es mit dem Pegel nicht übertreibt. Da Du aber eh insgesamt viel Membranfläche mitbringst, sollte das schon gehen. Es klingt einfach ein wenig angestrengt wenn das Chassi bei X-Max arbeitet. Apropo, die Schwingspulen hab ich schon des öfteren gegen die Polplatte gesetzt, zum Glück ohne Schaden. Mittlerweile hab ich an der DCX2496 den Limiter so eingestellt dass nichts mehr passieren kann.

Die Schwingspulenzuleitungen sind suboptimal. Es schaut aus als würden die Leitungen zwar im Werk ausgerichtet werden, aber das reicht nicht. Die können trotzdem Anschlagen und das hört man sofort. Zwischen Zentrierung und Membran ist einfach zu wenig Platz... Ich habe dazu diese Anschlussfahne wo die Zuleitung angelötet ist weiter nach innen gebogen, ca. 15-20°. Danach wurde mit niederfrequenten Sinus das Chassi ordentlich beackert und zwischenzeitlich die Litzenkrümmung angepasst, bis nichts mehr anschlägt. Da musst du dich ein bischen Spielen, das geht schon.

Die Anschlussfahnen nicht Löten!! Der Plastiksitz schmilzt! Besser mit Stecker. Trotz Stecker hab ich die Fahnen oberhalb noch mit Heißkleber befestigt, zur Sicherheit.

Die Ventilation ist auch ein Problem. Die Zentrierspinne ist mit vier winzigen Löchern hinterlüftet. Ich vermute das sind "Montageaufnahmen" von der Produktion. Die Pfeifen ganz leicht.

Die fehlende Polkernbohrung macht aber die meisten Strömungsgeräusche. Auch das hab ich auf mich genommen und einfach für Druckausgleich gesorgt. Ich habe alle Dustcaps rausgeschnitten :built: und gegen perforierte ersetzt. Die hab ich in Holland bestellt: http://speakerrepairshop.nl/
Der Antrieb wird dadurch paradoxerweise sogar Wärmer. Da die mechanische Belastung aber früher erreicht wird wie die elektrische, ist auch das kein Problem.

Lass dich jetzt bloß nicht davon abbringen, ich befürworte die Chassis trotzdem!
Zitieren



Möglicherweise verwandte Themen…
Thema Verfasser Antworten Ansichten Letzter Beitrag
  aéras Open Baffle neuer Aufbau dipoluser 4 2.231 22.04.2025, 06:52
Letzter Beitrag: dy1026u
  Open baffle Experiment Tojoko 3 3.416 12.09.2024, 20:03
Letzter Beitrag: Olaf_HH
  Projekt DynaLigth-MK2 2024 , Open Baffle, 2,5 Wege , Dynavox Chassis Olaf_HH 0 5.813 19.08.2024, 16:27
Letzter Beitrag: Olaf_HH
  Open Baffle Ellipse 2-Wege, mit SUB dipoluser 2 2.090 07.10.2023, 13:49
Letzter Beitrag: Tojoko
  Open Baffle aus PVC-Rohr und 3D-Druck dipoluser 11 3.476 12.04.2023, 09:06
Letzter Beitrag: SimonSambuca
  Die "krumm und schief open baffle" Projektvorstellung dy1026u 1 1.033 07.08.2022, 09:33
Letzter Beitrag: Kaspie
  Open Baffles mit MeloDavid Diatone P-610S Alnico Clones Florian_H 5 4.344 29.03.2022, 15:40
Letzter Beitrag: Florian_H
  2 Wege Open Baffle Spassgeneral 19 5.939 08.11.2021, 13:59
Letzter Beitrag: dy1026u
  open baffle Horn D'Appolito Idee teilaktiv plus Bass-Ripol dy1026u 9 3.702 29.04.2020, 18:26
Letzter Beitrag: dy1026u
  Vier-Wege Open Baffle mit bedämpften U-Frame SUB dipoluser 12 9.998 15.10.2019, 20:17
Letzter Beitrag: dipoluser

Gehe zu:


Benutzer, die gerade dieses Thema anschauen:
1 Gast/Gäste

Deutsche Übersetzung: MyBB.de, Powered by MyBB, © 2002-2026 Melroy van den Berg.